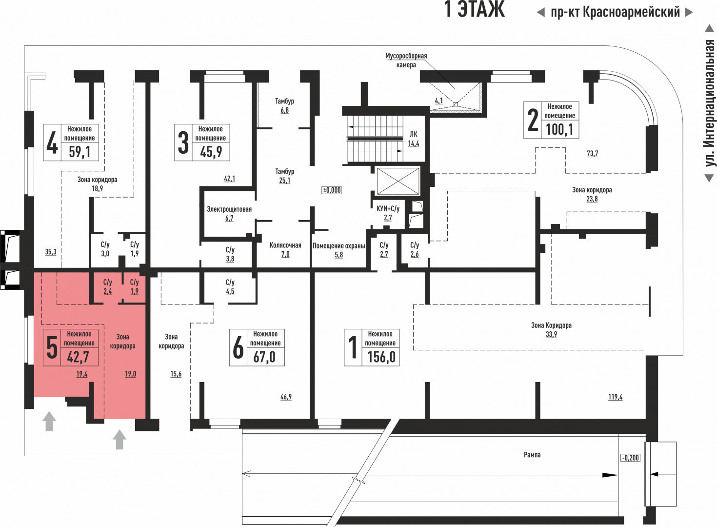
Продам помещение свободного назначения 42.7 м.кв.

на карте
Объявление в архиве
7 899 500 руб.
Барнаул , Центральный, Интернациональная ул, 130
Отдел продаж Ирбис
Контактные данные скрыты, так как объявление находится в архиве
Данные актуальны на 21.04.2024
Пожаловаться на объявление
Арт. 61826639 В продаже нежилое помещение , 1этаж в центре Барнаула ! Новый дом , от застройщика , офис свободного назначения , под разные виды услуг. Подходит по все виды расчета , коммерция в новом доме !

Дополнительная информация

Тип здания Бизнес-центр Этаж 1 Этажность 10 Количество комнат - Вход Общий Ремонт -
Интернет - Кондиционер - Вентиляция - Пожарная сигнализация - Красная линия -
Объекты, находящиеся поблизости
Банки, банкоматы
Сбербанк 170м
АО "Альфа-Банк" 170м
Совкомбанк 170м
Альфа-Банк 176м
Магазины, торговые площади
Фермерский дворик 213м
Столовые, кафе
Прованс
Shashlikoff 75м
Манхеттен-Пицца 111м
Lil Brazil 115м
Оливье 118м
Медучреждения
Центр стоматологического здоровья 161м
Результат 183м
Филиал поликлиники №1 222м
Гармония здоровья 308м
Апекс 394м
Автосервис
Мойдодыр 277м
Роснефть 399м
Аквабот 402м
Динамика изменения цен на рынке недвижимости ?

За последние полгода средняя сумма за кв.м. не изменилась. Тендов к значительному изменению цены в последнем месяце не наблюдается.
По городу Барнаул, в категории Универсальные помещения
За последние полгода средняя сумма за кв.м. выросла на 2943 руб. Колебание цен происходило от 61920 руб. до 65075 руб. На текущий момент наблюдается тенденция к уменьшению цены.
Похожие объявления
Обновлено
22.11.2025
Фотографии
1
Объявление 729935
Барнаул, Ларичиха, ул Вокзальная, д. 2В
1 000 000
руб. Продажа
39 м2
Вход в личный кабинет